
APPLICATION: MEASURING THE TOTAL VOLUME OF COLD POTABLE WATER PASSING THROUGH THE METER,IT'S SUITABLE FOR DOMESTIC USE.
OPERATING CONDITION:
WATER TEMP.: UP TO 50℃
THE MAX.ADMISSIBLE WATER PRESSURE: 1.6MPa (16bar)
SPECIALITY:
* LARGE MEASURING RANGE, HIGH FLOW ACCURACY.
* STEADY ERROR CURVE.
* LONG LIFE OF SERVICE.
* RELIABLE OPERATION.
* MAGNETIC SHIELD PROTECTION.
* NEGLIGIBLE HEAD LOSS AT WORKING FLOW–RATES.
* SEALED & VACCUMIZED REGISTER WITHOUT ANY CONDENSATION PROBLEM.
* BE EQUIPPED WITH THE PULSE DEVICE (THE MEASURED WATER VOLUME OF PER PULSE MAY BE 0.01m3/Pulse AND 0.1m3/Pulse).
Maximum permissible error:
Between qt (included) and qs is ±2%;
Between qmin and qt (excluded) is ±5%.
NOTE: The technical data conform to ISO4064 standard, class B.
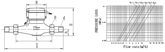
FLOW-ERROR CURVE

SPECIFICATION AND OVERAL DIMENSIONS
|
Description |
Unit |
Hydraulic data and dimensions |
|
Nominal size |
mm |
15 |
20 |
25 |
32 |
40 |
50 |
|
inch |
1/2 |
3/4 |
1 |
11/4 |
11/2 |
2 |
|
Overload flow-rate (qs) |
m3/h |
3 |
5 |
7 |
12 |
20 |
30 |
|
Permanent flow-rate (qp) |
m3/h |
1.5 |
2.5 |
3.5 |
6 |
10 |
15 |
|
Transitional flow-rate (qt) |
l/h |
120 |
200 |
280 |
480 |
800 |
3000 |
|
Minimum flow-rate (qmin) |
l/h |
30 |
50 |
70 |
120 |
200 |
450 |
|
Min. reading |
l |
0.05 |
0.05 |
0.05 |
0.05 |
0.05 |
0.05 |
|
Max. reading |
m3 |
99999 |
99999 |
99999 |
99999 |
999999 |
999999 |
|
Nominal pressure |
MPa |
1.6 |
1.6 |
1.6 |
1.6 |
1.6 |
1.6 |
|
ΔP at the qs |
MPa |
0.08 |
0.09 |
0.08 |
0.09 |
0.085 |
0.085 |
|
L |
mm |
145 |
190 |
260 |
260 |
245 |
300 |
|
165 |
300 |
|
I |
mm |
225 |
292 |
380 |
384 |
373 |
428 |
|
245 |
428 |
|
H |
mm |
123 |
123 |
128 |
128 |
182 |
182 |
|
h |
mm |
27 |
27 |
29 |
29 |
65 |
65 |
|
B |
mm |
90 |
90 |
90 |
9 |
130 |
130 |
|
Weight |
Without connections |
Kg |
1.09 |
1.24 |
1.74 |
2.07 |
3.40 |
5.30 |
|
1.15 |
3.60 |
|
With connections |
1.22 |
1.51 |
2.17 |
2.79 |
4.35 |
6.60 |
|
1.32 |
4.55 | OVERALL DIMENSIONS PRESSURE LOSS CURVE
 |