DN15-50mm, threads end
Multi-jet
Single-jet
Rotary Piston
Bypass
DN50-500, Flanged end
Accessories
 
Rotary Piston
 
PD08TAR-15~20E (rotary register)
 

APPLICATION: MEASURING THE TOTAL VOLUME OF COLD POTABLE WATER PASSING THROUGH THE METER.
 
SPECIALITY:
☆ THE HARDENED GLASS
☆ HIGH ACCURACY AND LARGE MEASURING RANGE
☆ NEGLIGIBLE HEAD LOSS AT WORKING FLOW-RATE
☆ MAGNET DRIVE WITH ANTI-MAGNETIC
☆ HIGH-QUALITY MATERIAL WITH LONG LIFE OF SERVICE
☆ RELIABLE IN DATA COLLECTING , HERMETICALLY SEALED REGISTER
☆ THE REGISTER IS SEALED AND IT COULD BE IN ANY POSITION
WITHIN 360°,CONVENIENT FOR INSTALLATION.
 
WORKING CONDITION:
☆ THE MAX. ADMISSIBLE WATER PRESSURE: 1.6MPa
☆  WATER TEMPERATURE: WATER TEMP UP TO 50℃
 
Maximum permissible error:
Between qt (included) and qs is ±2%;
Between qmin and qt (excluded) is ±5%.
NOTE: The technical data conform to ISO4064 standard, class B.
 
FLOW-ERROR CURVE


SPECIFICATION AND OVERALL DIMENSIONS

Description

Unit

Hydraulic data and dimensions

Nominal size

mm(inch)

DN15(1/2”)

DN20(3/4”)

Overload flow-rate (qs)

m3/h

2

3

Permanent flow-rate (qp)

m3/h

1

1.5

Transitional flow-rate (qt)

l/h

80

120

Minimum flow-rate (qmin)

l/h

20

30

Min. reading

l

0.05

0.05

Max. reading

m3

99999.9999

99999.9999

Max. working pressure

MPa

1.6

1.6

ΔP at the qs

MPa

≤0.1

≤0.1

L

mm

165

190

I

mm

245

290

H

mm

135

135

h

mm

36.5

36.5

B

mm

94

94

D

inch

G3/4B

G1B

d

inch

R1/2

R3/4

Weight

with counections

Kg

1.49

1.75

without counections

1.29

1.45

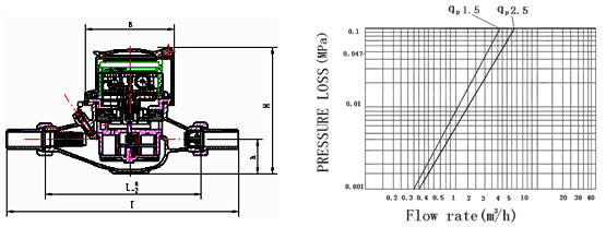
OVERALL DIMENSIONS                                                         PRESSURE LOSS CURVE

 

  All rights reserved: Lianyungang Lianli Water Meter Co.,Ltd. Tel: 0086-518-82341113 Fax: 0086-518-82340789
Add: Lianyungang economic and technological development zone, jiangsu, china
P.C: 222047 E-mail : lianli@yetaodigits.com Support: Sooba.cn 
好色先生官方版-好色先生污视频-好色先生黄版本-好色先生tv版下载